一、什么是反支撑
根据 《GB 50210-2001建筑装饰装修工程质量验收规范》的第六章吊顶工程,6.1一般规定的6.1.11中规定:“当吊杆长度大于1.5m时,应设置反支撑”。
《GB50210-2018建筑装饰装修工程质量验收标准》的第7.1.11 当吊杆长度大于1500mm时,应设置反支撑。
《GB50210-2018》编制说明:7.1.11 吊顶反支撑,即吊顶系统中承受向上荷载的反向支撑装置。是为了解决因吊杆过长造成吊顶系统不稳定(向上变形及横向变形)而采取的构造措施。吊顶反支撑通常用刚性材料制作,或用斜向支撑加以固定。
那么什么是反支撑,为何要设置反支撑,具体在施工中怎样深化设计、施工,应该注意哪些事项。
在天棚吊顶工程中,吊杆主要是起承受垂直吊挂在其上的吊顶龙骨,面板及轻型灯具设备的重力作用,在垂直方向上承受向下的重力;反向支撑构件主要是起承受吊顶面板因受外力作用,或在室内存在负风压作用而产生上下位移的作用,通俗的讲也就是承受面板向上的推力作用。在垂直方向上承受向上的力,所以叫“反向支撑”即通常我们所说的“反支撑”。

反支撑是指为了防止吊杆过长导致吊顶不稳摆动的现象,通过角钢把吊顶龙骨“按”在原地,形成垂直对抗气压的力的建筑构件形式。
(一)、设置反支撑的原因
在天棚吊顶施工中,现常用的吊杆为Φ8全丝镀锌吊杆,当其长度大于1.5m时,吊筋过长且直径比较小,长度与直径(长细比)比例失调,这样吊顶骨架的稳定性就会减弱。吊顶面板受到向上的推力时,或者室内有负风压的时候,它会产生向上的位移(变形),使吊筋容易产生一定的弯曲;撤去该力,受重力影响吊顶又恢复原来的垂直状态,周而复始,吊顶面板的平整度会受一定影响,甚至变形。大面积的石膏板平顶影响最为明显。在具体施工中,涂料工在顶面抹灰时会产生一定向上的推力;吊顶内安装灯具或其他有一定重力的设备时;吊顶内有阀门等需要检修时,都会使吊顶面板在垂直方向上受力而产生一定的位移(变形)。有时候在室内有负风压时,吊顶板面受到风荷载作用也会产生上下位移、浮动,使得面板变形。所以在吊顶工程中当吊杆长度大于规范要求时必须加设反向支撑。
(二)、怎样加设反向支撑
1、“倒三角法”或“梅花形法
做法为用角钢或者主龙骨做反支撑,一端固定在楼板上,另一端固定在吊顶主龙骨上,角度为45°倾斜安装(见图1)。反支撑与楼板一般用膨胀螺丝固定,与主龙骨用抽芯铆钉固定,因反支撑与吊杆成一定角度,通常叫它“倒三角法”。为了使吊顶反支撑均匀传递向上的推力或其他外力,反支撑安装不应在同一直线上,间距在2m以内,应该围绕某一中心呈梅花形分布,所以有时也叫它“梅花形法”。在实际施工中,为了不影响部分吊顶内设备的安装,一般采用90°垂直安装(见图2)。此做法为传统做法,在实际施工中已经很少用。

2、采用吊杆通长拉结
在距吊顶主龙骨450mm~600mm位置,垂直于主龙骨方向用吊杆与吊顶吊杆通长焊接(吊杆与吊杆焊接必须做防锈处理),横向吊杆在末端与墙体固定,在间距2m处加设45°小斜撑,这样就加强了吊杆在垂直方向的稳固性,也起到了反支撑的目的(见图3)。若吊杆长度在1.5m~3m时,此方法较实用。

3、在吊杆外加Φ16 镀锌金属套管
设置反支撑的原因就是为了加强由于吊杆过长且直径较小影响吊顶在垂直方向上的稳定性。所以我们要想方设法加粗吊杆,又要使其受力强度不受影响,镀锌金属线管自重轻,承压,抗腐蚀,抗变形能力强。所以在吊杆外加设金属套管也能达到其反向支撑的目的,间距为小于2m为宜。若吊杆长度大于1.5m小于3m此方法较实用。
二、什么是转换层
《GB50210-2018 建筑装饰装修工程质量验收标准》的第7.1.14 吊杆上部为网架、钢屋架或吊杆长度大于2500mm时应设有钢结构转换层。
《GB50210-2018》编制说明:7.1.14吊顶上部的网架或钢屋架不宜打孔装吊杆,以免影响结构安全,故设置钢结构转换层装吊杆;吊杆长度大于2500mm时吊杆会过长不稳定,需要设置钢结构转换层。吊杆与管道等设备相遇或吊顶造型复杂时,也可设置钢结构转换层。钢结构转换层应进行结构承载力计算。
转换层就是当吊杆过长而反支撑无法满足规范要求,或吊顶空间过大,又或者吊杆与机电设备碰撞造成吊杆间距过大时,需要用到的吊顶内部钢架,目的同样是让吊顶避免气流引起的动不稳定。

1、在吊顶内设置一道型钢转换层
吊顶以上的空间可以很大,但用前面几种方法设置反支撑的范围却是有限的。吊顶以上空间为3m~5m时,用以上几种方法就已经不是很实用了,而且施工起来较费工,这时就需要设置一道转换层,来转换吊杆在吊顶内的固定点。即用型钢制作一道转换层,把吊杆按规范间距焊接在转换层上,在此基础上再做以下的吊顶龙骨及面板安装(见图4)。这种方法在空间较高时施工起来方便,又能满足吊顶结构的要求,但相对造价要高。

2、设置两道或多道型钢转换层
若吊顶内有上人型检修马道、灯光、音响及其他较大的设备时,显然设置一道转换层是无法满足功能要求的。这就需要设置两道或者多道转换层来转换吊顶吊杆的固定点,满足吊顶各种造型施工的要求。此转换层施工起来较复杂,质量要求严格,其选用相应型材,必须经过受力计算,结构受力分析才能施工,施工难度大。但在解决大空间吊顶问题上是一种较科学的施工方法。见图5。

综上所述,反支撑和转换层之间是约等于的关系(反支撑≈转换层),只是适用的空间有所不同,目的都是为了:缩短吊杆长度保证吊顶安全和方便吊顶空间内设备管道的排布。
只不过转换层是大面积使用,反支撑是局部使用,而且两者几乎不会出现在同一个空间中。
三、什么情况下需要用到反支撑/转换层?
1、当吊顶吊筋长度大于1.5m且小于3.0m时,应按规范要求设置反向支撑;

2、当吊顶内部空间大于3.0m时,(或反支撑垂直长度>1500mm时)应该设置转换层;

▲当吊杆与设备相遇时应调整并增设吊杆,吊顶面积较大时,吊顶设备排布复杂不建议使用反支撑。
四、反支撑和转换层的标准做法有哪些?
反支撑做法有:主龙骨拉结法、吊杆通长拉结法、倒三角法。
转换层做法有:钢架转换层、吊杆+钢架转换层。
1、反支撑做法
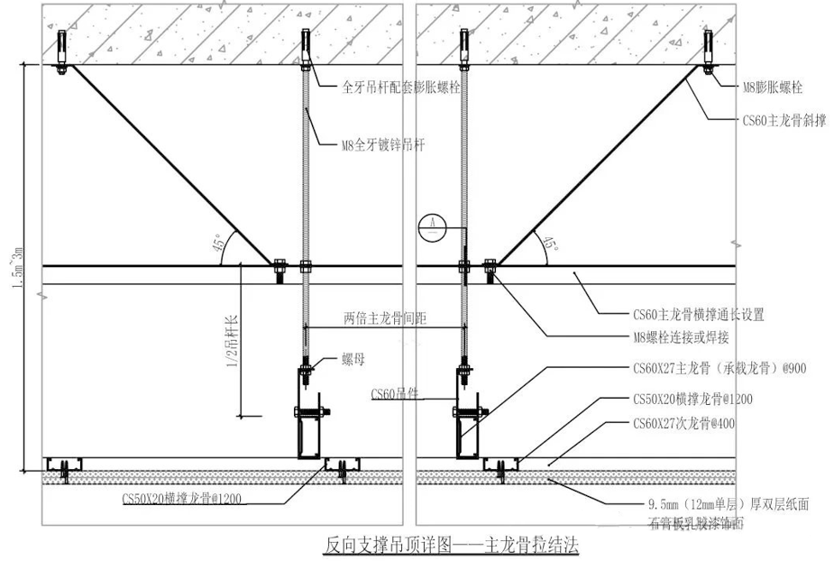
1)主龙骨拉结法

△主龙骨拉结法
主龙骨拉结法适用于吊杆长度超过1.5m且小于3m时。

具体做法:在CS60主龙骨横撑底边每隔主龙骨间距打孔,M8全牙吊杆穿过,位置确定后上下螺母固定。
CS60主龙骨斜撑每隔两倍主龙骨间距相向设置;当吊杆长度超过1.5m且小于2m时,适当采用CS50主龙骨。
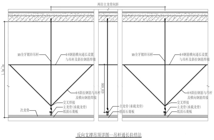
2)吊杆通长拉结法

△吊杆通长拉结法
吊杆通长拉结法是在吊杆长度超过1.5m且小于3m时适用。

做法要求:斜拉钢筋每隔两倍主龙骨间距设置。∅8横向钢筋、斜拉钢筋及其与M8全牙吊杆焊接处必须做防锈处理。∅8钢筋可用M8全牙吊杆替代,但焊接处需做防锈处理。
3)倒三角法

△倒三角法
倒三角法是在吊杆长度超过1.5m且小于2m时适用。安装间距在2m以内,围绕某一中心呈梅花形分布,且不应设置在同一直线上。

2、转换层做法
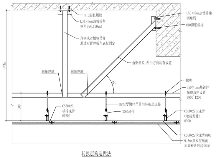
1)钢架转换层

△角钢转换层
①转换层的吊杆采用角钢、槽钢等刚性构件,杆端与楼板底面可靠连接。

②为保障转换层的稳定,应有斜向撑与混凝土梁侧、墙侧可靠连接,纵横向均应设置。
无法与梁侧、墙侧连接时,应在吊杆间设置交叉拉杆,纵横向均应设置。
2)吊杆+钢架转换层

根据前面提到的内容可以知道,反支撑/转换层的做法就是为了让吊杆的长度不大于1500mm,那么转换层的做法也可以做成:吊杆+角钢+吊杆,这种做法相对全钢架转换层更节约成本,实际应用中更灵活。


五、总结
反支撑和转换层是为了:
① 缩短吊杆长度保证吊顶安全;
② 方便吊顶空间内设备管道的排布;而设置的建筑构件。
其中:
1、当吊顶吊筋长度大于1.5m且小于3.0m时,应按规范要求设置反向支撑;
2、当吊顶内部空间大于3.0m时,(或反支撑垂直长度>1500时)应该设置转换层。
文章来源于网络,若有侵权,请联系删除!
END
公司简介

陕西创宁环境科技有限公司是一家集实验室系统工程、微生物实验室、PCR实验室;卫生医疗系统的手术室装饰装修工程、ICU(重症监护室)系统工程、检验科、射线防护工程、制剂室等系统工程;GMP 洁净制药车间、精密电子洁净厂房、恒温恒湿净化车间、无菌洁净包装车间、中央空调等众多领域的空间规划、设计、装修改造、设备供应、售后服务于一体的现代化高科技企业。
欢迎致电咨询:029-86475554
17791163999
18991846153

扫描右方二维码
点赞、关注、分享
让更多人看见
